ePrivacy and GPDR Cookie Consent by TermsFeed Generator

ProdejByt3+1 ULICE DĚTSKÁ ZLÍN 77 m2 + LODGIE, PO KOMPL. REKO

Dětská, 760 05 Zlín 5

Informace o nemovitosti

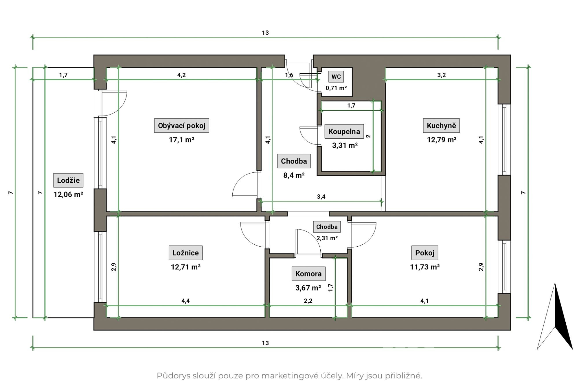
Ve výhradním zastoupení nabízíme k prodeji prostorný a moderně zrekonstruovaný byt o dispozici 3+1 a celkové ploše 77m2, doplněný o lodžii 12 m2. Byt se nachází ve 4. nadzemním podlaží panelového domu v žádané a klidné lokalitě Zlína ulice Dětská.  

Byt prošel kompletní rekonstrukcí - nové rozvody vody a elektřiny, omítky, radiátory, kvalitní podlahy Gerflor, kuchyňská linka na míru se spotřebiči Whirlpool, vyzděné jádro, moderní koupelna se sprchovým koutem a samostatná toaleta. Dále vestavěné skříně v chodbě, stropní podhledy s bodovým osvětlením a praktické úložné prostory, k dispozici je komora v bytě, komora na patře a sklep v suterénu domu. Byt je částečně zařízený a připravený k okamžitému nastěhování. 

Hlavní přednosti bytu:
- dispozice 3+1, plocha 78 m2 + lodžie 10 m2
- orientace na východ a západ - slunný byt po celý den
- kompletní rekonstrukce ve vysokém standardu
- komora v bytě, na chodbě + sklepní kóje
- klidná lokalita s výbornou dostupností do centra města

Tento byt je ideální volbou pro rodinu, která hledá prostorné a moderní bydlení v atraktivní části Zlína. 

Penb D

Specifikace

  • Zastavěná plocha 465m2
  • Kuchyně ANO
  • Koupelna / WC ANO
  • Elektřina ANO
  • Plyn NE
  • Vytápění DŘEVO + ELEKTŘINA
  • Sklep ANO
  • Přilehlé objekty ANO
  • Přilehlé pozemky ANO
  • Penb G - v přípravě
  • Balkón ANO

Zaujala vás tato nemovitost?

V případě zájmu o tuto nemovitost nás neváhejte kontaktovat. Rádi zodpovíme Vaše dotazy nebo případně poradíme.

Mám zájem o více informací Video prohlídka Hypoteční kalkulačka

Hledáme nemovitosti ve Zlíně a okolí

Zdarma oceníme Vaši nemovitost k prodeji

Odměna za tip nemovitosti na prodej nebo pronájem

Nabízíme kompletní profesionální realitní služby